丸林ビル

30.8万円 (0.31万円/坪) 管理/共益費 -

72-4

篠栗線「篠栗」駅徒歩8分

価格
30.8万円(0.31万円/坪) 管理/共益費 -
面積
97.79坪(323.28㎡)
所在地
72-4
築年
1992年7月(築33年)
駐車
有(3台)
交通

篠栗線篠栗」駅 徒歩8分

丸林ビルの基本情報

物件名
丸林ビル
価格
30.8万円(0.31万円/坪)
管理/共益費
-
築年月
1992年7月(築33年)
所在地
72-4
交通

篠栗線篠栗」駅 徒歩8分

丸林ビルの詳細情報

設備条件
  • 駐車3台可
駐車場/月額
有(3台)/0円
用途地域
近隣商業
取引態様
仲介

丸林ビルで募集中の物件

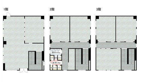
  1. 1-3階

    97.79坪 (323.28㎡)

    30.8万円(0.31万円/坪)

丸林ビル

お気軽にお問い合わせください

LINEからお問い合わせ 無料お問い合わせ

FUKUOKA ASSETS PROJECT

0120-407-110

10:00~18:00

(休:日曜・祝日)